任丘市嘉宸金屬制品有限公司
聯系人:張經理
手機:18831737888
E-mail:969896110@qq.com
地址:河北省任丘市劉莊工業區
十一種類型的鋁單板安裝方法介紹
發布時間:2022-07-12 07:52:55 人氣:1089 來源:本站
將從以下11種鋁板安裝方式和節點要求進行展開:
1、方形扣板
2、條形扣板
3、勾搭結構鋁板
4、U型掛片鋁板
5、凹凸(AT)吊頂板
6、飛翼型吊頂鋁板
7、M型網格吊頂鋁板
8、造型鋁板吊頂
9、墻面鋁板
10、鋁板包柱安裝
11、扶梯包鋁板
1、方形扣板
方形扣板一般尺寸為300—800不等,最大寬幅為600*1200,厚度一般0.4-1.2厚視尺寸要求來定。

矮邊方板天花吊頂安裝示意圖△

高邊方板天花吊頂安裝示意圖△

扣板和設備帶收口示意圖△

600*600跌級板天花吊頂安裝示意圖△
2、條形扣板
常規條形扣板安裝節點一般寬幅較小,常見的有200mm、300mm寬,長度一般為2400mm,厚度在0.8-1.2不等。
如果尺寸較大必須保證厚度達到標準、或是背面襯瓦倫板或加強筋。


條形鋁板與窗簾處的收口示意圖△
一定要注意收口條尺寸要遮蓋掉扣板10-20mm,防止條形板漏縫。

扣板和墻體立面的收邊條收口細節△





幾款常規的條形扣板的安裝示意圖△
以上圖例都為暗藏卡扣式龍骨,暗藏龍骨鋁板是密拼形式出現,安裝時注意事項:
1、龍骨間距控制準確,不然會出現安裝誤差。
2、安裝次序是測量放線→固定吊桿→安裝邊龍骨→安裝主龍骨→安裝次龍骨、撐擋龍骨→安裝飾面板→安裝壓條、收口條。
3、注意收口條底邊必需保證在同一水平面上,鋁板才不會出現邊緣傾斜。
4、吊頂上的燈具、風口及檢修口和其他設備,應設獨立吊桿安裝,不得固定在龍骨吊桿上。

明裝龍骨安裝示意圖△
明裝龍骨原理和礦棉板安裝系統大致一樣,龍骨既是結構受力的載體又是裝飾收口工藝縫。
這類安裝方式對龍骨的搭設要求較高,尺寸必需精準,不然鋁板放置后會出現漏縫或是放置不進去。
3、勾搭結構鋁板

異形勾搭板天花吊頂安裝示意圖△
特點:
1、結構牢固表面平整。
2、承載的自重較高,所以寬幅可以做大。
3、對龍骨間距尺寸要求較高。
4、如有隱藏式燈槽、風口帶等,勾搭結構盡量垂直于結構帶來排布。這樣便于收口和安裝。
如果燈帶燈帶是靠透光板遮擋的,可以通過收口條收口。
如下圖所示:

透光燈帶勾搭板節點處理示意圖△

勾搭結構的節點示意圖△

隱藏燈槽處的勾搭板節點示意圖△

4、U型掛片鋁板

常規U型掛片的安裝示意圖△
1、截面尺寸不宜過大,一般寬度30mm—50mm,高度40mm—120mm。翻邊卡口處一般為5mm,間距視設計而定。
材料厚度為1.0—1.5,不宜過厚。
原因有兩點:
①容易產生R較偏大不美觀;
②增加造價。
2、龍骨最好能做好顏色處理,防止安裝后出現露底現象而影響美觀。
3、長度不宜過長,一般小于4m,便于安裝同時防止變形。
4、對于不常規尺寸,量大的情況下可以開模成形,量小時一定要注意先做鈑金成形再做表面處理,這樣防止用表面處理好的材料成形時出現表面損壞。
5、運輸途中一定要注意包裝,防止出現因擠壓而造成的變形。
鋁合金型材成形用的掛片

鋁合金型材成形用的掛片△
特點:安裝方便、外形挺拔美觀、量大的情況下成本較低。
安裝細節:


內部連接使用套管、側面使用專用蓋板。
這種結構可以通過以下4種方式來實現成形:

方案1:
是鋁型材擠壓成型,在項目用量較大(1噸以上),型材尺寸不大(型材高度在150以內)的情況下使用該方案較有優勢。用量在2000米以上,同等厚度的情況下型材比鋁板成型便宜10%左右。
方案2:
鋁板成型加鉚接配件,該方案是在用量不大且鋁板厚度在1.0左右,尺寸較大的情況下使用。配件起到增加強度的作用。一般用量在1000以下,500米以上。
方案3:
在用量較少,尺寸較特殊的情況下使用。(如20*300*1.2)
方案4:
在用量較大,尺寸規格較大不適合開模做型材的情況下使用。(如30*400*0.8)該方案適合鋁板較薄的情況下使用,既能降低成本又能保證強度。
方通與幕墻邊緣窗簾盒的收口

方通與幕墻邊緣窗簾盒的收口處理細節△
注意窗簾箱鋁板底邊和鋁方通底邊保持在同一水平線。
下面為常規掛片的安裝示意圖,供參考:



5、凹凸(AT)吊頂板
凹凸型吊頂安裝結構是依托勾搭結構來成型安裝的,既能實現視覺上的整體感又能保證結構的穩固。
注意事項:單片鋁板寬度不宜過大。

凹凸(AT)吊頂板安裝節點示意圖△

AT型天花吊頂△
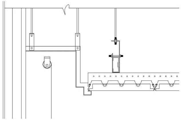
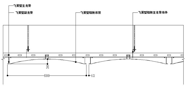
6、飛翼型吊頂鋁板


飛翼型鋁單板吊頂△
7、M型網格吊頂鋁板


M型金屬網格△
8、造型鋁板吊頂

梯級吊頂示意圖△
適用于會議室、劇院等場所。

過道造型頂示意圖△

弧形吊頂示意圖△

節點細節示意圖△
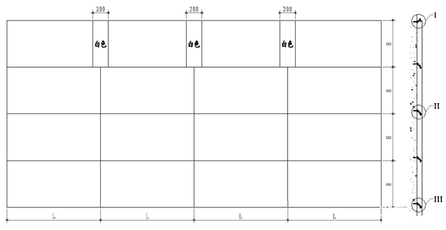
9、墻面鋁板


Ⅰ節點放大△

Ⅱ節點放大△

Ⅲ節點放大△

無縫安裝節點放大圖△
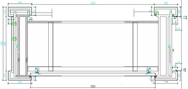
10、鋁板包柱安裝


此類包柱節點適合直徑較大的柱體,把包板分割成四份,外觀呈現兩條密拼縫和兩條工藝縫。
工藝縫中間以結構膠填實。
缺點:
1、結構膠裸露在外,影響美觀;
2、兩條密拼縫與基層不接觸,受外力影響容易出現變形現象。

帶工藝縫壓條的圓柱包柱示意圖△
安裝方式:
以焊接碼片于包板側面,直接螺絲連接碼片與鋼架,再用U型壓條牙縫。

注意事項:
1、鋁板必須保證2.5厚;
2、上下、左右碼片位置一定要錯開,不然在穿插的過程中會出現碰撞到一起而不能拼插;
3、安裝前必須檢查鋼架是否平整、垂直,防止包板表面不平整;
4、壓縫條分割要和鋁板對縫,保持外觀美觀。

包板卡掛式結構△
這種安裝方式可以做到密拼效果,無需工藝槽和收口條,但是對尺寸精度要求較高,不得有偏差錯位。
連接處細節見下圖:

技術要求:
1、材料:2.5mm厚鋁板。
2、內裝板控制負公差。
3、注意弧面不能有直線段。

消防卷簾處柱體包板節點圖△

柱體墻面伸縮縫節點圖△

帶檢修門的柱體△
11、扶梯包鋁板
自動扶梯包板常用于商場、機場、車站等公共空間,看似比較簡單但是要保證大面的平整、收口的整齊是有一定難度的。
在節點深化的過程中要充分考慮到安裝的方便和外觀的美觀。

自動扶梯包覆的節點圖△

側板的節點示意圖△
側板分成三段,上下包板借助扶梯鋼架通過螺絲連接;
中間插板以碼片固定于側面鋼架上,以側面固定為主,上下收口借助于上下包板。

上下包板結構示意圖△
下方包板比較顯眼,面積比較大,行人在抬頭處就能看到,所以要保證大面的平整必需保證基層的平整。

自動扶梯下方包板節點示意圖△
上圖以穿插掛板方式安裝。
這種方法比較便于安裝,同時結構的穿插能夠保證大面的平整。
自動扶梯包覆注意事項:
1、鋁板厚度盡量保證2.0以上,自動扶梯寬幅較大容易造成板面變形,所以對厚度的要求較高。
2、掛板前必需檢查鋼架或基層是否保持平整,確保安裝完成后包板整體平整不變形。
3、注意節點的深化必須方便安裝,在上下扶梯重疊處最為重要。
4、側面包板的分割要和底面包覆的鋁板分割對縫。
5、收口處打膠要保證細節處理不影響外觀。


上下側板包覆細節處理△
相關新聞
- 鋁單板施工多少錢一平方? 2022-06-15
- 鋁單板的安裝方式和安裝方法 2022-06-11
- 鋁單板用途 2023-01-26
- 3.5mm厚的鋁單板價格是多少錢一平米? 2022-12-23
- 4mm厚的鋁單板價格是多少錢一平米? 2022-12-23
- 雕花鋁單板和沖孔鋁單板有什么不同?為什么鏤空雕花板價格更貴? 2022-07-12
- 鋁單板越厚越好嗎?2.0mm鋁單板和3.0mm鋁單板有何區別? 2022-07-12
- 安裝雙曲鋁單板有哪些注意事項? 2022-06-03
- 幕墻鋁單板厚度規范 2023-02-15
- 鋁單板幕墻的材質及構造 2022-10-06

